Standaard modellen
Wij begrijpen we dat elke ruimte uniek is en dat uw badkamer niet alleen functioneel, maar ook een weerspiegeling van uw stijl moet zijn. Daarom bieden wij een diverse selectie aan prefab badkamer modellen, ontworpen om aan uiteenlopende wensen en behoeften te voldoen. Ontdek hieronder onze verschillende modellen en laat u inspireren door de vele mogelijkheden.
Onze compacte modellen zijn ideaal voor kleinere ruimtes zonder concessies te doen aan comfort en functionaliteit. Deze badkamers zijn slim ontworpen om elke vierkante meter optimaal te benutten, met stijlvolle en ruimtebesparende oplossingen.
Overzicht modellen
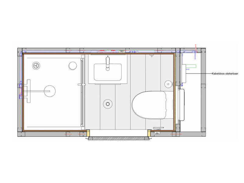
HOTEL BADKAMER (STANDAARD)
Slimme en compacte badkamer
Voorzien van douche, inbouwtoilet, wastafelmeubel en diverse accessoires.
HPL- wand en vloerafwerking standaard (tegels optioneel)
Kleurstelling naar wens te kiezen
Ruime wastafel en douchehoek
STUDENT BADKAMER (STANDAARD)
Slimme en compacte badkamer
Voorzien van douche, inbouwtoilet, wastafelmeubel en diverse accessoires.
HPL- wand en vloerafwerking standaard
Kleurstelling naar wens te kiezen
Compacte wastafel en douchehoek
MIVA BADKAMER (STANDAARD)
Ruime rolstoeltoegankelijke badkamer
Voorzien van inloopdouche, aangepast wastafelmeubel en diverse wandsteunen.
HPL- wand en vloerafwerking standaard
Kleurstelling naar wens te kiezen
Eenvoudig in onderhoud
MIGRANTENHUISVESTING BADKAMER (STANDAARD)
Zeer compacte badkamer
Voorzien van douche, wastafelmeubel en inbouwtoilet.
HPL- wand en vloerafwerking standaard
Kleurstelling naar wens te kiezen
Eenvoudig in onderhoud
APPARTEMENT BADKAMER (STANDAARD)
Ruime badkamer
Voorzien van douche, wastafelmeubel en inbouwtoilet.
HPL- wand en vloerafwerking standaard
Kleurstelling naar wens te kiezen
Eenvoudig in onderhoud
TINY HOUSE BADKAMER (STANDAARD)
Compacte badkamer
Voorzien van douche, wastafelmeubel en inbouwtoilet.
HPL- wand en vloerafwerking standaard
Kleurstelling naar wens te kiezen
Eenvoudig in onderhoud
Meer weten over onze badkamers?
Onze medewerkers staan voor je klaar om mee te denken in jouw project.
